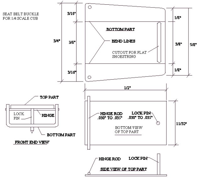
Submitted by Jim Williamson
Make the buckle from 0.025 to 0.030 inch thick tin sheet metal or what you want. The cutout slot should be sized for a black flat shoestring. Bend both sides of bottom part up 90 degrees on the bend lines. Solder the hinge rod to the bottom side of the top part to line up with the holes located in the bottom part. Solder a piece of wire (lock pin) to the bottom side of the top part to line up with the slot located in the bottom part. Insert the hinge rod in one of the hinge holes then bend the other side back a little to insert the rod now bend it back up. Open and close the hinged top part and make any adjustments. Cut the lock pin off so the length is below the bottom part. Place one end of a flat shoestring through the slot fold it under and glue to itself. Slide the other end of the shoestring through the hinged end and past the lock pin closing the top part will “pin” the shoestring. Now cut the shoestring to fit your pilot’s seat. enjoy!
